
Villetta a schiera 110
L’ingresso conduce a un ampio giardino privato che circonda la proprietà su tre lati, uno spazio curato e perfettamente fruibile, ideale per momenti di relax all’aria aperta, per i bambini e per accogliere amici e familiari durante la bella stagione. La villa, completamente ristrutturata circa dieci anni fa, è dotata di ogni comfort ed è pronta per essere abitata senza necessità di interventi.
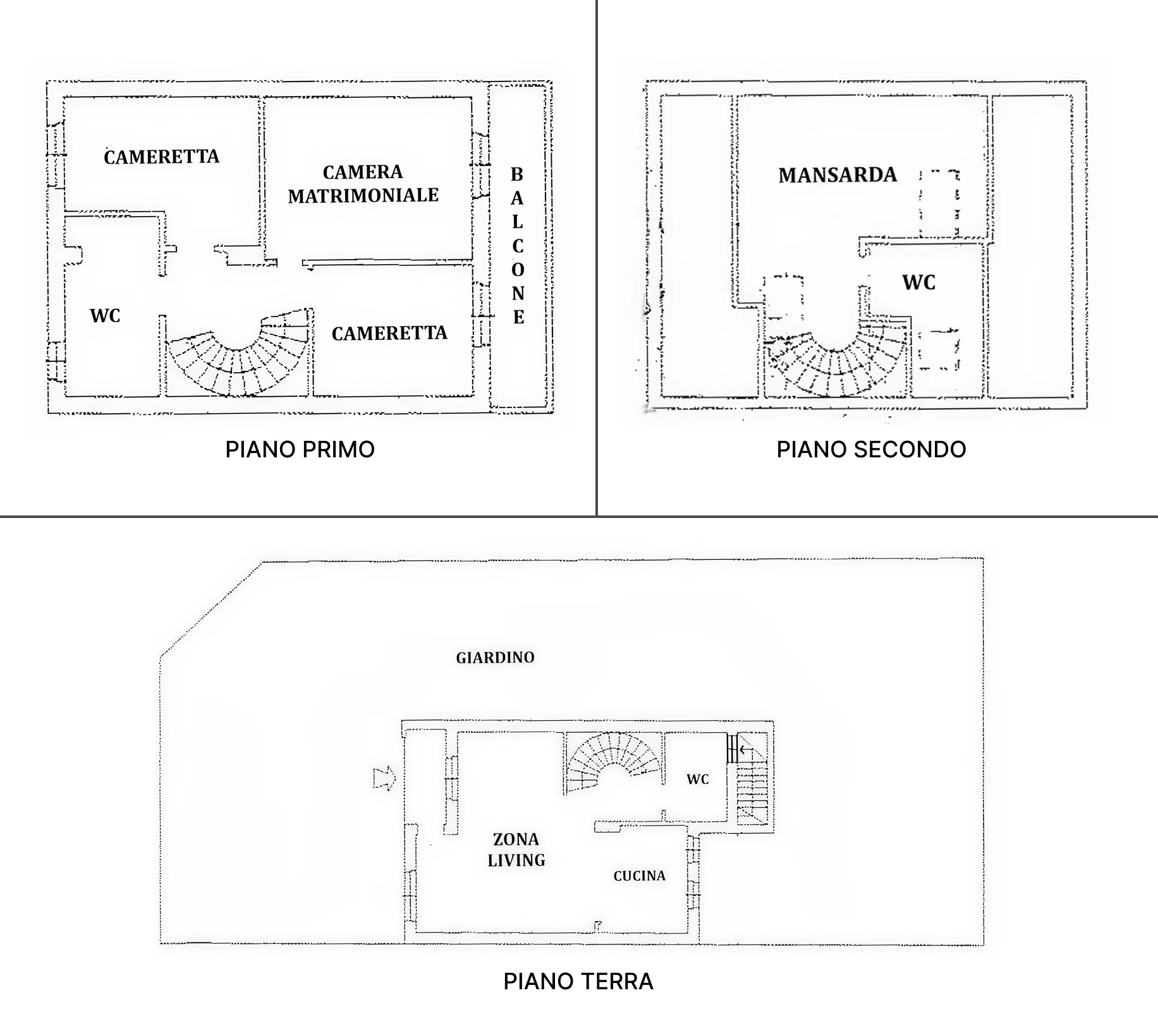
Al piano terra si sviluppa una luminosa zona giorno in open-space, dove il soggiorno dialoga con la cucina a vista in stile americano, creando un ambiente moderno e conviviale con accesso diretto al giardino sul retro; completa il livello un bagno finestrato di servizio, con parquet che valorizza tutti gli ambienti. Il piano seminterrato ospita una taverna versatile, ideale come zona hobby o relax, oltre a lavanderia e accesso diretto al garage doppio. La zona notte, al primo piano, comprende tre camere ben proporzionate e un bagno finestrato, mentre l’ultimo piano mansardato, anch’esso abitabile, offre un ulteriore spazio polifunzionale con bagno dedicato. Una soluzione pensata per accompagnare la crescita della famiglia, in una delle aree più richieste di Segrate, dove verde, tranquillità e servizi si integrano armoniosamente.
